Für die Ingenieurbauwerke werden durch uns in diesem Gewerk alle Leistungsbilder zu den Objekt- und Fachplanungen für Abwasseranlagen / Wasserbau gemäß der HOAI (Teil 3) und der AHO erbracht.

Diese Fachkompetenz fließt auch in folgende Aufgabenbereiche ein:

  • Betreuung von Bauleitverfahren
  • Entwässerungskonzepte städtischer Räume
  • Überstau- / Überflutungsnachweise
  • Technische Ausrüstung von Entwässerungsanlagen
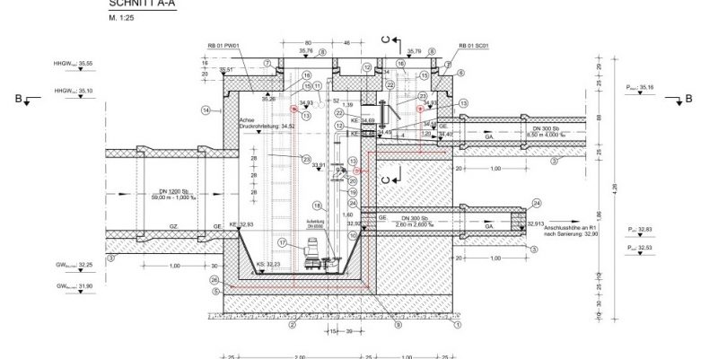
  • Sonderbauwerke

Vor dem Hintergrund der sich verändernden klimatischen Randbedingungen und in Folge einer geänderten Abfolge und Stärke von Niederschlagsereignissen, kommt der Dimensionierung der Entwässerungsanlagen eine hohe Bedeutung zu.

Das bestehende, innerörtliche Entwässerungssystem ist in der Regel in weiten Teilen bereits stark ausgelastet und auch aufgrund der häufigeren Starkregenereignisse ist der Bau von Sonderbauwerken notwendig, wie zum Beispiel Stauraumkanälen, Regenrückhaltebecken oder Pumpenbauwerken.

Zur Dimensionierung der Entwässerungsanlagen erstellen wir hydrodynamische Kanalnetzberechnungen, über die wir die Leistungsfähigkeit der Entwässerungsnetze nachweisen sowie Überläufe wie auch Retentionsräume bestimmen.